Продается дом, 105 кв.м., /2 эт
Обзор№ - 1495
| Стоимость | 14 999 999 |
|---|---|
| Комнат в доме | 3 |
| Категория земли | ИЖС |
| Тип комнат | изолированные |
| Право собственности | Посредник |
| Тип парковки | Открытая во дворе |
| Тип строения | Таунхаус |
| Площадь, кв.м. | 105 |
| Площадь участка, сот | 2.25 |
| Этажность | 2 |
| Материал стен | Блочный |
Адрес
| Населенный пункт | Ханты-Мансийск |
|---|---|
| Улица | улица Павлика Морозова |
| Номер дома | 10а |
В избранное Продаётся ДОМ 105 кв.м.
Продаётся капитальный дом в центральной части города.
Дом двухэтажный, материал стен – газоблок.
По документам — это квартира в двухквартирном доме + земельный участок 2,25 сотки
ВОЗМОЖЕН ОБМЕН на квартиру в Ханты-Мансийске с доплатой!
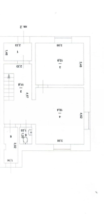
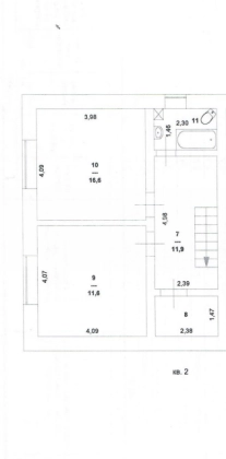
- Общая площадь 105 кв.м., светлая кухня-гостиная 18,4 кв.м., санузел на каждом этаже
- Семью с детьми приятно порадует планировка, где для каждого члена семьи найдется свой уголок - в доме 3 изолированных комнаты, санузел на каждом этаже, просторная кухня - гостиная, а также кладовая на 2 этаже и отдельная котельная на 1 этаже
- Помимо центрального выхода, есть выход во двор
Немного о конструктиве дома:
- толщина внешних стен 400 мм газоблок плюс 50 мм термопанель на мраморной крошке;
- толщина внутренних стен 200 - 300 мм газоблок;
- толщина стен от соседей 400 мм газоблок;
- цокольное перекрытие капитальное (бетонные плиты ПБ);
- межэтажное перекрытие по балкам со слоем звукоизоляции 250 мм;
- двухконтурный немецкий котёл фирма "Viessmann";
- черепичная крыша "Braas". Гарантия от производителя 30 лет;
- деревянные немецкие окна "Baumart" со стеклопакетами (энергосберегающие стекла, легкая тонировка, толщина профиля 82 мм, противомоскитные сетки, откидные и распашные створки, деревянные подоконники);
- Розетки и выключатели фирмы Schneider, коллекция «Жемчуг»;
- По коммуникациям: электричество 380 В 15 квт/час; центральное водоснабжение; централизованное газоснабжение; автономная канализация (септик 10м3).
ЗАХОДИ И ЖИВИ!
- Дом 2021 года постройки. По отделке есть небольшие штрихи, требующие завершения. Весь материал для этого имеется.
- Дом расположен в центре города. Вся инфраструктура "на ладони"
- В шаговой доступности (рядом) школа 1, детские сады N1 "Колокольчик", стоматологическая поликлиника, центр профессиональной патологии, детский санаторий, ДС "Дружба", Продуктовые магазины, остановки общественного транспорта
- А на территории двора, в ближайшее время, планируется подсадка саженцев крупной малины, вишни, смородины, яблони, облепихи, ирги - вкусный бонус покупателю
Номер в базе: 1495
ОТЛИЧНОЕ ПРЕДЛОЖЕНИЕ В НАШЕМ ГОРОДЕ! Торг обсуждаем
- Помогу с оформлением документов, одобрении заявки на ипотеку.
БОЛЕЕ 4-х лет ПОМОГАЕМ РЕШИТЬ ВОПРОСЫ С НЕДВИЖИМОСТЬЮ
С НАМИ БЫСТРО, ВЫГОДНО, НАДЕЖНО!
- Звоните, чтобы записаться на показ
- Добавляйте в избранное, и Вы не потеряете это предложение!
- Посмотрите другие наши объявления - выберите для себя лучшее из лучших



















































